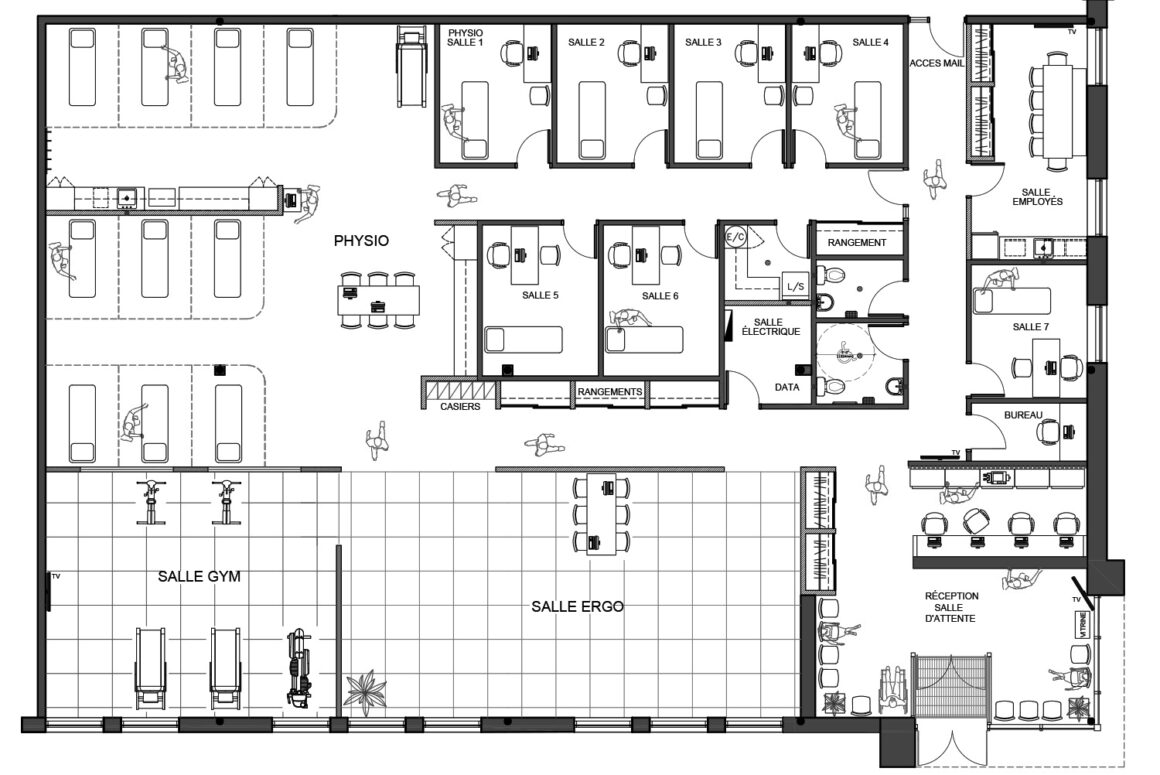
- Projets: Nouvelle construction et rénovation
- Client: Groupe Physiothérapie Universelle
- Lieux: Plus de 10 cliniques, Montréal et périphérie
- Période: Depuis 2019



-
SERVICES
- Analyse des besoins
- Relevés, esquisses et plans de blocage
- Documents de présentation
- Estimation budgétaire et recommandations
- Plans et documents techniques
- Conception de mobilier sur mesure
- Collaboration avec les équipes de projet
- Suivi des travaux – Contrôle de la qualité



