- Projets: Nouvelle construction et rénovation
- Client: Groupe IRIS
- Lieux: Plus de 10 cliniques au Québec
- Période: 2014-2018



Clinique IRIS de Boucherville
-
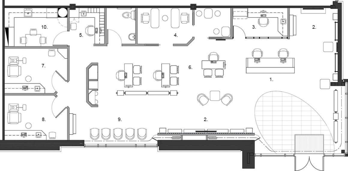
- Réception – Accueil
- Lunetterie – Espace de vente
- Laboratoire
- Salle de test
- Salle de lentilles (CL)
- Espace d’ajustement
- Salle d’examen 1
- Salle d’examen 2
- Aire d’attente
- Cuisinette





