Concept Hemingway
Client : Groupe Futures Cités
Collaboration : Miguel Escobar, architecte
Lieu : Kahnawake, Québec
Superficie : 3 000 pi²
Année : 2024
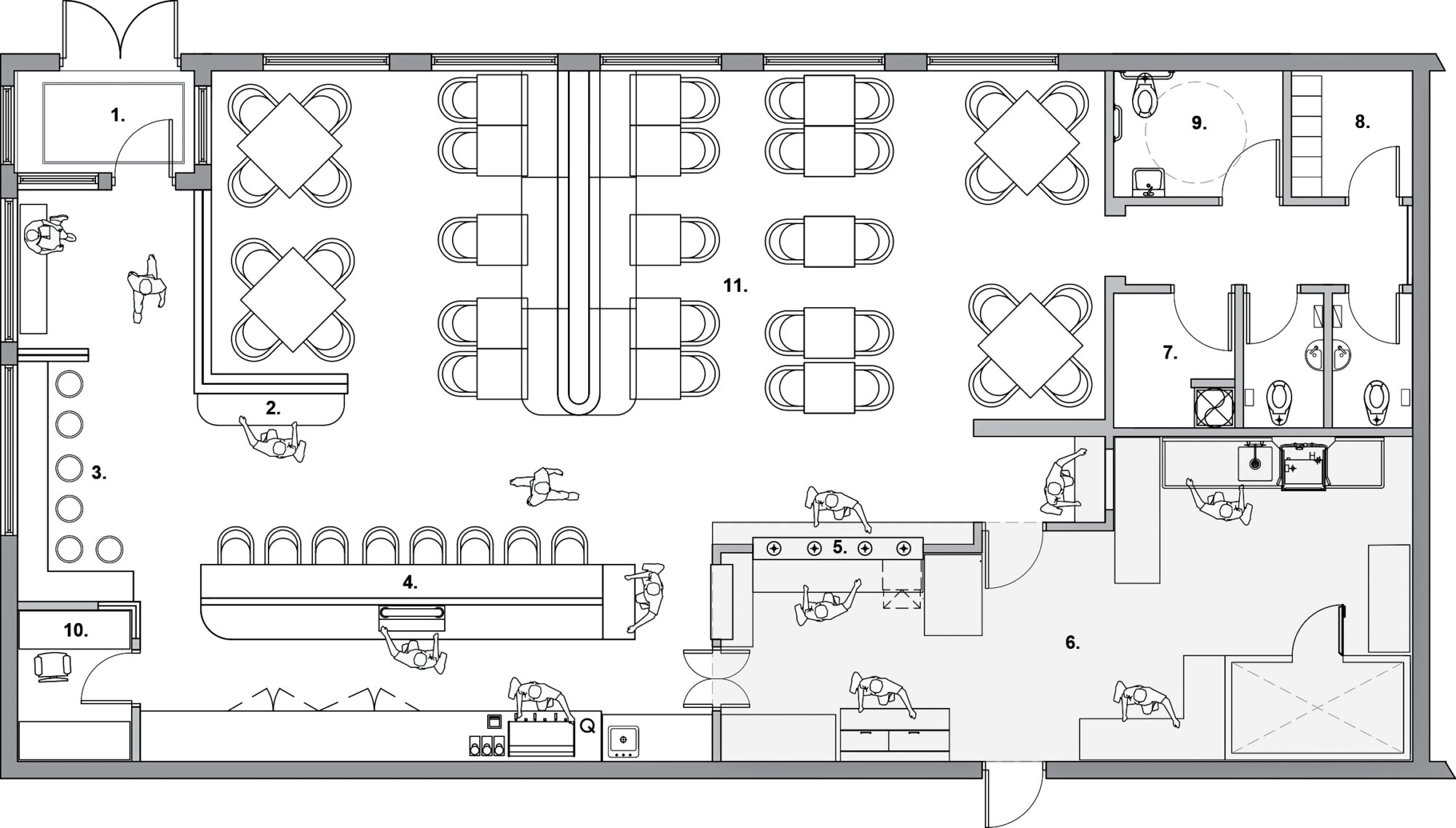
Un mandat complet, du logo jusqu'aux documents de construction
Réalisé en collaboration avec l’architecte Miguel Escobar, ce projet couvre le développement intégral d’un bar-restaurant : identité visuelle, architecture intérieure et documents techniques. Le Concept Hemingway a été pensé comme une expérience immersive, alliant image de marque forte et aménagement cohérent. L’espace a été structuré pour accueillir 60 places dans une configuration fluide, optimisant les déplacements, la visibilité et l’efficacité des opérations.


Entrée
- Station d’accueil
Comptoir « standing bar »
Comptoir-bar et zones de service
Station passe-plats
Cuisine de 450 pi²
Salle mécanique
Vestiaire des employés
Installations sanitaires
- Bureau privé
- Salle à manger


